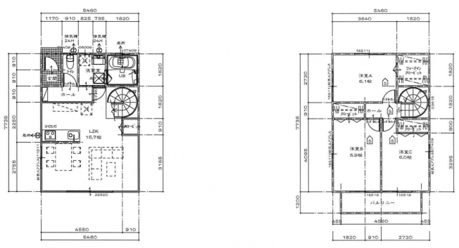
松山市鴨川3丁目の中古一戸建て
価格
6500
万円
間取り
3LDK
面積
315.83㎡
所在階
-
間取り