石風呂町
価格
880
万円
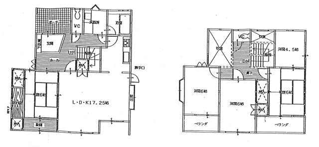
間取り
4SLDK
面積
122.34㎡
所在階
-