クリスタルコート道後92
価格
1990
万円
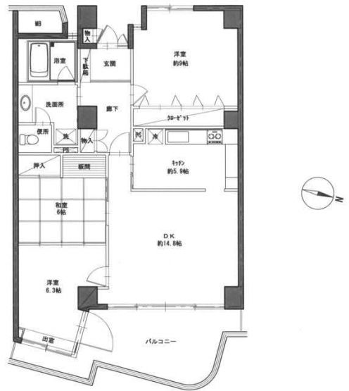
間取り
3LDK
面積
107.01㎡
所在階
11階
間取り