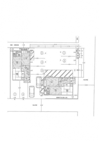
曽我部駐車場
価格
5000
円
所在階
-