グランフィル久米西棟
価格
1630
万円
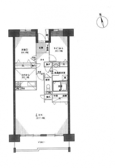
間取り
1SLDK
面積
72.94㎡
所在階
2階
間取り