西二階町貸店舗
消費税法の改正と価格等の表示について
当サイトの課税対象となる物件価格およびその他費用等は、税込み表示となっております。
※消費税法の改正に伴い、物件の引き渡し時期、お支払い時期等により課税率が異なります。
詳しくは、各情報提供元の不動産会社にご確認くださいますようお願いいたします。
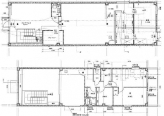
物件概要 【店舗事務所】 物件番号:5935892 情報更新日:2026年02月07日 次回更新予定日:2026年02月17日
| 物件名 | 西二階町貸店舗 | ||
|---|---|---|---|
| 所在地 | 兵庫県姫路市西二階町 | ||
| 交通 |
|
||
| 間取り/詳細 | - - | ||
| 賃料 | 31.9万円 | 管理費+共益費 | - |
| 敷金/保証金/礼金 | 3ヶ月/ -/ 2ヶ月 | 償却/敷引 | -/ - |
| 坪数 | 70.92坪 | 坪単価 | 0.4499万円/坪 |
| 面積 | 234.46㎡ | 総戸数 | - |
| 築年月(築年数)/方位 | 2008年 1月(築18年)/- | 契約期間 | 2年 |
| 種別/構造 | 店舗事務所/鉄骨造 | 部屋/所在階/階建 | -/ - / 2階建 |
| 現況 | 空家 | 引渡時期 | 相談 |
| 駐車場/料金 | -/- | 保険加入/料金 | 加入義務有/- |
| 権利金/雑費 | -/- | 取引形態/賃貸区分 | 一般媒介/一般 |
| 設備条件 |
|
||
| 賃貸保証等 |
【必須加入】 日本セーフティー株式会社(初回:月額総賃料100%、更新時:10%/年毎) |
||
| 備考 | ※1階:119.40㎡、2階:115.06㎡※室内の設備は、残置物扱いです。※飲食は、要相談 | ||
ただいまの掲載物件数:




















