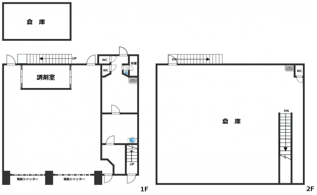
東近江市八日市野々宮町 貸店舗・事務所
価格
33
万円
面積
383.49㎡
所在階
1-2階
間取り
外観