奥村ビル
価格
13.2
万円
面積
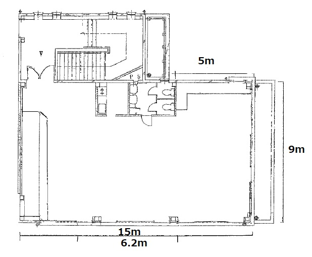
135.00㎡
所在階
2階
外観
間取り
ロビー
内装
キッチン
洗面所
トイレ
トイレ
その他設備
展望