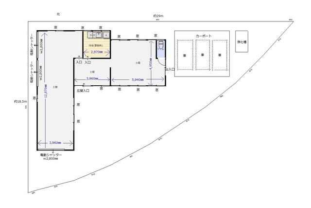
白王町高井倉庫(S)
価格
13.5
万円
面積
103.26㎡
所在階
-
間取り