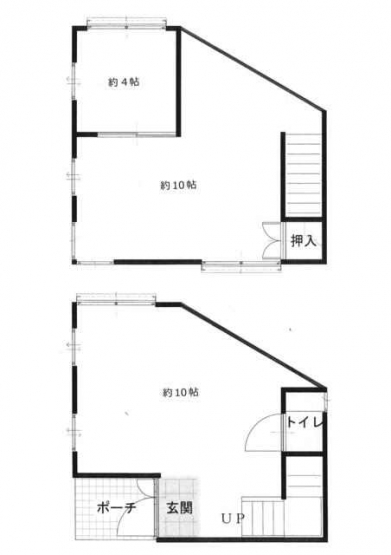
彦根市西沼波町の店舗一戸建て
価格
5.8
万円
面積
45.45㎡
所在階
-
間取り