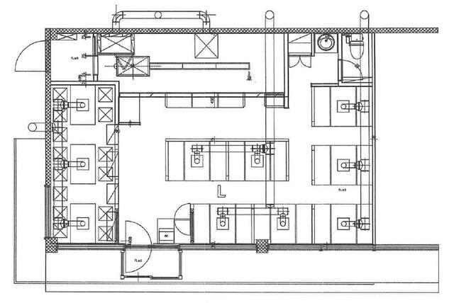
長浜市山階町の店舗一部
価格
27
万円
面積
60.52㎡
所在階
1階
間取り