千祥ビル
価格
6.16
万円
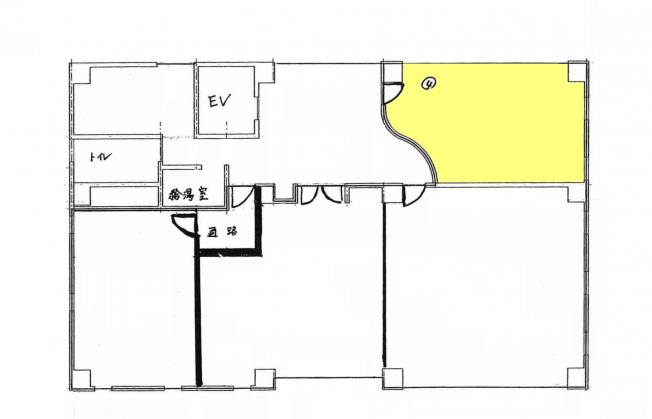
面積
26.85㎡
所在階
3階
彦根市役所、滋賀県湖東土木事務所の前にありますオフィステナントです。JR/近江鉄道彦根駅からも徒歩圏内です。
外観
外観
間取り
エントランス