守山市吉身1丁目の中古マンション
価格
4280
万円
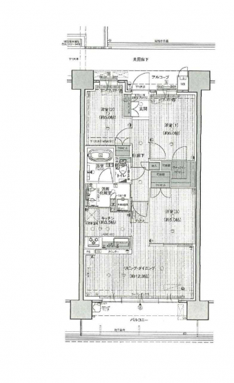
間取り
3LDK
面積
70.65㎡
所在階
7階
間取り