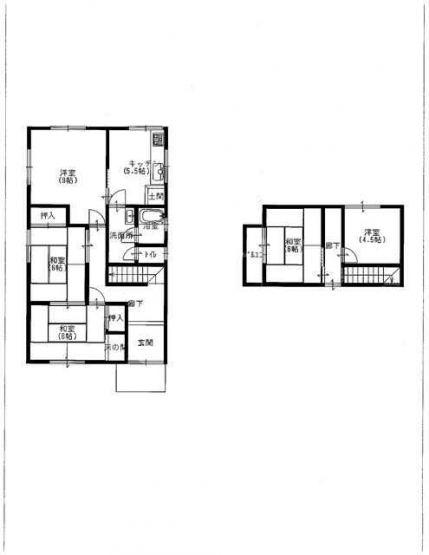
東近江市宮川町の中古一戸建て
価格
380
万円
間取り
5DK
面積
103.10㎡
所在階
-