野洲市大畑テナント
価格
13.2
万円
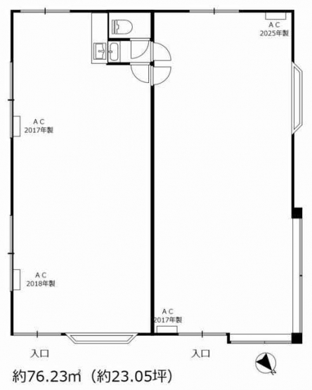
間取り
1LDK
面積
76.23㎡
所在階
1階
間取り
150000