長浜市相撲町の中古一戸建て
価格
1500
万円
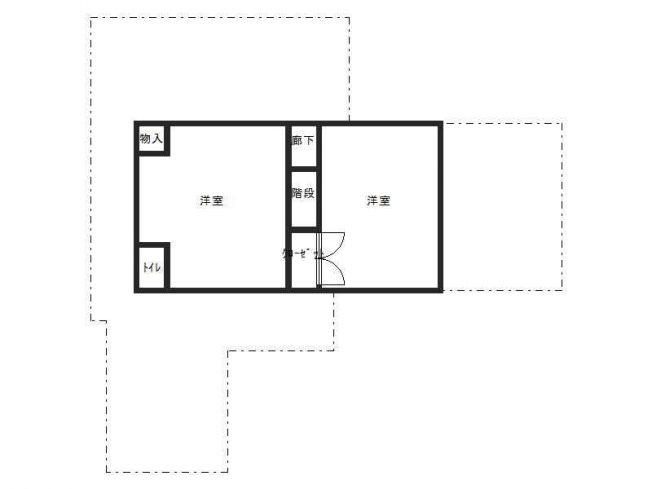
間取り
5LDK
面積
152.61㎡
所在階
-
間取り