大津市下阪本2丁目の中古テラスハウス
- 価格
- 480万円
- ローンの目安
- 1.4万円/月
- 所在地/交通
- 滋賀県大津市下阪本2丁目
京阪石山坂本線「穴太」駅 徒歩12分
- 間取り/建物面積
- 4DK
56.29㎡
消費税法の改正と価格等の表示について
当サイトの課税対象となる物件価格およびその他費用等は、税込み表示となっております。
※消費税法の改正に伴い、物件の引き渡し時期、お支払い時期等により課税率が異なります。
詳しくは、各情報提供元の不動産会社にご確認くださいますようお願いいたします。
ローンシミュレーションこの物件を購入した場合の、月々の支払い価格の一例です。
- 返済期間
-
- 金利
-
- ボーナス時の増額(1回分)
-
- 借入金額:
-
- 頭金:
-

- 毎月の返済額:
(※元利均等方式 金利5.00%まで ※返済年数5~35年まで入力できます)
(※ボーナスは年2回で計算しています。1000万円まで入力できます)
物件概要 【中古テラスハウス】 物件番号:5941232 情報更新日:2026年03月18日 次回更新予定日:2026年04月01日
| 物件名 | 大津市下阪本2丁目の中古テラスハウス | ||
|---|---|---|---|
| 所在地 | 滋賀県大津市下阪本2丁目 | ||
| 交通 |
|
||
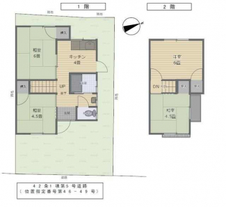
| 間取り/詳細 |
4DK/
和 6・4.5・4.5 洋 6 DK 4 |
||
| 接道状況 | 一方(東 6.00m ) | ||
| 価格 | 480万円 | 主要採光面 | 東 |
| 建物面積/坪数 | 56.29㎡/ 17.02坪 | 土地面積/坪数 | 71.80㎡/ 21.71坪 |
| 種別/構造 | 中古テラスハウス/木造 | 築年月(築年数) | 1971年 7月(築54年) |
| 階建 | 2階建 | 地目 | 宅地 |
| 駐車場/料金 | -/- | 地勢 | 平坦 |
| 私道負担面積 | - | セットバック | - |
| 都市計画 | 市街化区域 | 建築確認区分 /建築確認番号 |
-/- |
| 建ぺい率 | 60.00% | 容積率 | 200.00% |
| 土地権利 | 所有権 | 用途地域 | 第一種中高層住居専用 |
| 借地料 | - | 現況 | 空家 |
| 棟総戸数 | - | 販売戸数 | - |
| 国土法届出要否 | 要 | その他の法令上の制限 | - |
| 取引態様 | 専任媒介 | 引渡時期 | - |
| 設備条件 |
|
||
ただいまの掲載物件数:



















