東近江市下二俣町(倉庫付き)
各部屋や水まわりはリフォーム済みで、快適にお過ごしいただけます。 8SLDKの間取りは収納スペースも豊富で、暮らしにゆとりが生まれます。 また、二間続きの和室は広々と使用でき、和風の前栽もあり落ち着いた雰囲気を楽しめます。
- 価格
- 1980万円
- ローンの目安
- 5.9万円/月
- 所在地/交通
- 滋賀県東近江市下二俣町
近江鉄道八日市線「八日市」駅 徒歩48分
- 間取り/建物面積
- 8SLDK
302.21㎡
消費税法の改正と価格等の表示について
当サイトの課税対象となる物件価格およびその他費用等は、税込み表示となっております。
※消費税法の改正に伴い、物件の引き渡し時期、お支払い時期等により課税率が異なります。
詳しくは、各情報提供元の不動産会社にご確認くださいますようお願いいたします。
ローンシミュレーションこの物件を購入した場合の、月々の支払い価格の一例です。
- 返済期間
-
- 金利
-
- ボーナス時の増額(1回分)
-
- 借入金額:
-
- 頭金:
-

- 毎月の返済額:
(※元利均等方式 金利5.00%まで ※返済年数5~35年まで入力できます)
(※ボーナスは年2回で計算しています。1000万円まで入力できます)
物件概要 【中古一戸建て】 物件番号:5934694 情報更新日:2026年04月15日 次回更新予定日:2026年04月19日
| 物件名 | 東近江市下二俣町(倉庫付き) | ||
|---|---|---|---|
| 所在地 | 滋賀県東近江市下二俣町 | ||
| 交通 |
|
||
| 間取り/詳細 |
8SLDK/
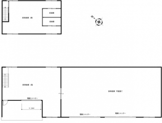
L 10.00畳 1室 DK 1室 和室 10.00畳 1室 和室 6.00畳 3室 和室 8.00畳 1室 S 1室 和室 4.50畳 2室 洋室 1室 |
||
| 接道状況 | 二方 | ||
| 価格 | 1980万円 | 主要採光面 | - |
| 建物面積/坪数 | 302.21㎡/ 91.41坪 | 土地面積/坪数 | 1307.15㎡/ 395.41坪 |
| 種別/構造 | 中古一戸建て/木造 | 築年月(築年数) | 1977年 11月(築48年) |
| 階建 | 2階建 | 地目 | 宅地 |
| 駐車場/料金 | 有/- | 地勢 | 平坦 |
| 私道負担面積 | - | セットバック | 無 |
| 都市計画 | 市街化調整区域 | 建築確認区分 /建築確認番号 |
-/- |
| 建ぺい率 | 70.00% | 容積率 | 200.00% |
| 土地権利 | 所有権 | 用途地域 | 無指定 |
| 借地料 | - | 現況 | 空家 |
| 棟総戸数 | - | 販売戸数 | - |
| 国土法届出要否 | 不要 | その他の法令上の制限 | - |
| 取引態様 | 専任媒介 | 引渡時期 | - |
| 設備条件 |
|
||
| 備考 | ・各部屋・水廻りなど適時リフォーム済 ・離れ2階に約12帖の屋根付きバルコニーあり ・南西に和風前裁有 【倉庫】 鉄骨造平家建 112.5m2 平成11年新築 ・アルミカーポート2台有 ・敷地アスファルト舗装済 | ||
ただいまの掲載物件数:





















