滋賀の不動産・賃貸|ハトらぶ>(一戸建て(売買))路線・駅から探す>東海道・山陽本線>近江八幡駅>長峰団地 380

東近江市宮川町の売買物件(滋賀県東近江市)の最新物件情報

  • このエントリーをはてなブックマークに追加

東近江市宮川町の中古一戸建て

所在地 交通 建物
滋賀県東近江市宮川町 東海道・山陽本線「近江八幡」駅 バス40分 長峰集会所前 停歩7分 築50年
2階建 -
軽量鉄骨

販売情報

消費税法の改正と価格等の表示について
当サイトの課税対象となる物件価格およびその他費用等は、税込み表示となっております。
※消費税法の改正に伴い、物件の引き渡し時期、お支払い時期等により課税率が異なります。
詳しくは、各情報提供元の不動産会社にご確認くださいますようお願いいたします。

物件情報 物件情報

周辺地図 周辺地図

  • 東近江市宮川町の中古一戸建ての画像
  • 東近江市宮川町の中古一戸建ての画像
  • 東近江市宮川町の中古一戸建ての画像

※ご覧になりたい写真をクリックすると
拡大されて表示されます。

物件概要【中古一戸建て】

物件名
東近江市宮川町の中古一戸建て
所在地
滋賀県東近江市宮川町
交通
  • 東海道・山陽本線「近江八幡」駅 バス40分 長峰集会所前 停歩7分
価格
380万円
建物面積
-
土地面積
193.80㎡
築年月(築年数)
1975年 6月( 築50年 )
種別/構造
中古一戸建て / 軽量鉄骨
地目
宅地

東近江市宮川町の中古一戸建てへのお問い合わせは (株)ハウスクオリティー まで

0748-31-0515

-

定休日:

滋賀県近江八幡市中村町8-14

販売情報

価格 ローン目安 間取り 建ぺい率/容積率 建物面積 土地面積 詳細 検討リスト
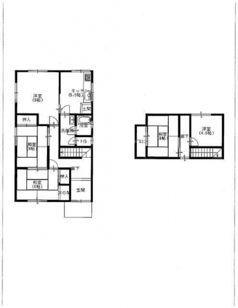
380万円 1.1万円/月 5DK -/ - - 193.80㎡ 詳細を見る 追加する

おすすめ物件

五個荘山本町の画像

五個荘山本町

滋賀県東近江市五個荘山本町

近江鉄道近江本線「五箇荘」駅 徒歩45分

築21年

五個荘簗瀬町の画像

五個荘簗瀬町

滋賀県東近江市五個荘簗瀬町

近江鉄道近江本線「五箇荘」駅 徒歩21分

新築

佐野町の画像

佐野町

滋賀県東近江市佐野町

東海道本線「能登川」駅 徒歩8分

築5年

南清水町の画像

南清水町

滋賀県東近江市南清水町

近江鉄道近江本線「八日市」駅

築17年

宮川町(長峰団地)の画像

宮川町(長峰団地)

滋賀県東近江市宮川町

近江鉄道近江本線「桜川」駅

築28年

会社概要

-
(株)ハウスクオリティー
  • 滋賀県近江八幡市中村町8-14
  • TEL/0748-31-0515
  • FAX/0748-31-0516
  • 滋賀県知事免許(2)第3739号

トップへ戻る