甲賀市甲賀町小佐治の中古一戸建て
消費税法の改正と価格等の表示について
当サイトの課税対象となる物件価格およびその他費用等は、税込み表示となっております。
※消費税法の改正に伴い、物件の引き渡し時期、お支払い時期等により課税率が異なります。
詳しくは、各情報提供元の不動産会社にご確認くださいますようお願いいたします。
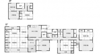
物件概要【中古一戸建て】
- 物件名
- 甲賀市甲賀町小佐治の中古一戸建て
- 所在地
- 滋賀県甲賀市甲賀町小佐治
- 交通
-
- 草津線「寺庄」駅 バス10分 新田 停歩3分
- 価格
- 1800万円
- 建物面積
- -
- 土地面積
- 2286.43㎡
- 築年月(築年数)
- 1979年 7月( 築46年 )
- 種別/構造
- 中古一戸建て / 木造
- 地目
- 宅地
ただいまの掲載物件数:
















