中村町テナント
- 賃料
- 27.5万円
- 間取り
- -
- 面積
- 191.41㎡
- 所在階
- -
- 管理費+共益費
- -
- 敷金
- -
- 礼金
- 1ヶ月
消費税法の改正と価格等の表示について
当サイトの課税対象となる物件価格およびその他費用等は、税込み表示となっております。
※消費税法の改正に伴い、物件の引き渡し時期、お支払い時期等により課税率が異なります。
詳しくは、各情報提供元の不動産会社にご確認くださいますようお願いいたします。
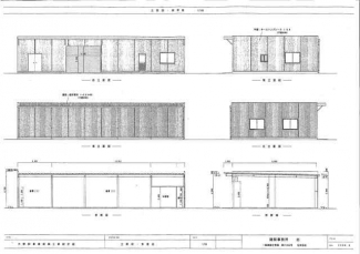
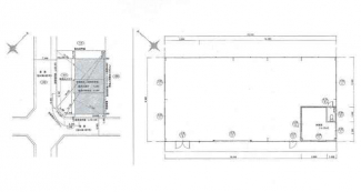
物件概要 【店舗事務所】 物件番号:5944741 情報更新日:2026年01月24日 次回更新予定日:2026年02月07日
| 物件名 | 中村町テナント | ||
|---|---|---|---|
| 所在地 | 滋賀県近江八幡市中村町 | ||
| 交通 |
|
||
| 間取り/詳細 | - - | ||
| 賃料 | 27.5万円 | 管理費+共益費 | - |
| 敷金/保証金/礼金 | -/ 3ヶ月/ 1ヶ月 | 償却/敷引 | 1ヶ月/ - |
| 坪数 | 57.9坪 | 坪単価 | 0.475万円/坪 |
| 面積 | 191.41㎡ | 総戸数 | - |
| 築年月(築年数)/方位 | 2006年 9月(築19年)/- | 契約期間 | 3年 |
| 種別/構造 | 店舗事務所/鉄骨造 | 部屋/所在階/階建 | -/ - / 1階建 |
| 現況 | 空家 | 引渡時期 | 即時 |
| 駐車場/料金 | -/- | 保険加入/料金 | -/- |
| 権利金/雑費 | -/- | 取引形態/賃貸区分 | 代理/一般 |
| 設備条件 |
|
||
ただいまの掲載物件数:

















