長浜市八幡中山町の店舗事務所 1階
- 賃料
- 30.25万円
- 間取り
- -
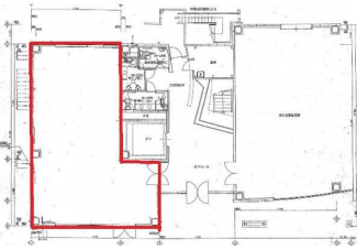
- 面積
- 100.09㎡
- 所在階
- 1階
- 管理費+共益費
- 36300円
- 敷金
- -
- 礼金
- -
消費税法の改正と価格等の表示について
当サイトの課税対象となる物件価格およびその他費用等は、税込み表示となっております。
※消費税法の改正に伴い、物件の引き渡し時期、お支払い時期等により課税率が異なります。
詳しくは、各情報提供元の不動産会社にご確認くださいますようお願いいたします。
物件概要 【店舗事務所】 物件番号:5922727 情報更新日:2026年03月07日 次回更新予定日:2026年03月21日
| 物件名 | 長浜市八幡中山町の店舗事務所 | ||
|---|---|---|---|
| 所在地 | 滋賀県長浜市八幡中山町 | ||
| 交通 |
|
||
| 間取り/詳細 | - - | ||
| 賃料 | 30.25万円 | 管理費+共益費 | 36300円 |
| 敷金/保証金/礼金 | -/ 6ヶ月/ - | 償却/敷引 | -/ - |
| 坪数 | 30.27坪 | 坪単価 | 0.9994万円/坪 |
| 面積 | 100.09㎡ | 総戸数 | - |
| 築年月(築年数)/方位 | 1994年 1月(築32年)/- | 契約期間 | 10年 |
| 種別/構造 | 店舗事務所/鉄骨造 | 部屋/所在階/階建 | -/ 1階/ 6階建 |
| 現況 | 空家 | 引渡時期 | 相談 |
| 駐車場/料金 | 有/0円 | 保険加入/料金 | 加入義務有/- |
| 権利金/雑費 | -/- | 取引形態/賃貸区分 | 一般媒介/一般 |
| 設備条件 |
|
||
| 賃貸保証等 |
【必須加入】 初回時 賃料(共益費等含む)1ヶ月分・更新時(1回/年)賃料(共益費等含む)10% ・毎月 収納代行 |
||
| 備考 | *基本、現状有姿渡しの原状回復。*改装造作及び看板取付けの場合、貸主の事前承諾が必要。また、事前の図面等の提出も必要。*出入口2箇所あります。※造作工事業者のご相談有り。※同敷地内に「飲食居抜き」貸店舗もあり(こちらもご相談ください)。 | ||
ただいまの掲載物件数:

















