彦根市原町の店舗事務所 1階
- 賃料
- 12.5125万円
- 間取り
- -
- 面積
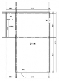
- 58.00㎡
- 所在階
- 1階
- 管理費+共益費
- 5500円
- 敷金
- 4ヶ月
- 礼金
- 2ヶ月
消費税法の改正と価格等の表示について
当サイトの課税対象となる物件価格およびその他費用等は、税込み表示となっております。
※消費税法の改正に伴い、物件の引き渡し時期、お支払い時期等により課税率が異なります。
詳しくは、各情報提供元の不動産会社にご確認くださいますようお願いいたします。
物件概要 【店舗事務所】 物件番号:5914252 情報更新日:2025年12月02日 次回更新予定日:2025年12月16日
| 物件名 | 彦根市原町の店舗事務所 | ||
|---|---|---|---|
| 所在地 | 滋賀県彦根市原町 | ||
| 交通 |
|
||
| 間取り/詳細 | - - | ||
| 賃料 | 12.5125万円 | 管理費+共益費 | 5500円 |
| 敷金/保証金/礼金 | 4ヶ月/ -/ 2ヶ月 | 償却/敷引 | -/ - |
| 坪数 | 17.54坪 | 坪単価 | 0.7134万円/坪 |
| 面積 | 58.00㎡ | 総戸数 | - |
| 築年月(築年数)/方位 | 1988年 4月(築37年)/- | 契約期間 | 2年 |
| 種別/構造 | 店舗事務所/鉄骨造 | 部屋/所在階/階建 | -/ 1階/ 2階建 |
| 現況 | 空家 | 引渡時期 | 相談 |
| 駐車場/料金 | 有/5000円 | 保険加入/料金 | 加入義務有/- |
| 権利金/雑費 | -/- | 取引形態/賃貸区分 | 一般媒介/一般 |
| 設備条件 |
|
||
| 賃貸保証等 |
【必須加入】 総賃料の1ヶ月分(初回)・振込手数料330円/月・更新時:総賃料の10%円/年。 |
||
| 備考 | *基本、現状有姿渡しの原状回復。 ※残置物あり(エアコン・ミニキッチン等)。*事務所使用の場合、契約締結後、貸主にて物件内の「床」は改装引渡し予定(引き渡し日ご相談/※写真は現状を掲載しております)。*改装及び看板取付けの場合、貸主の事前承諾が必要。また、事前の図面等の提出も必要。*短期契約ご相談(内容によります)。 | ||
ただいまの掲載物件数:

















