白王町高井倉庫(S)
- 賃料
- 13.5万円
- 坪単価
- 0.4323万円/坪
- 面積
- 103.26㎡
- 所在階
- -
- 管理費+共益費
- -
- 敷金
- 3ヶ月
- 礼金
- 1ヶ月
消費税法の改正と価格等の表示について
当サイトの課税対象となる物件価格およびその他費用等は、税込み表示となっております。
※消費税法の改正に伴い、物件の引き渡し時期、お支払い時期等により課税率が異なります。
詳しくは、各情報提供元の不動産会社にご確認くださいますようお願いいたします。
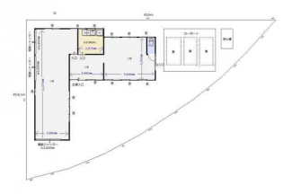
物件概要 【倉庫】 物件番号:5961986 情報更新日:2026年04月05日 次回更新予定日:2026年04月19日
| 物件名 | 白王町高井倉庫(S) | ||
|---|---|---|---|
| 所在地 | 滋賀県近江八幡市白王町 | ||
| 交通 |
|
||
| 賃料 | 13.5万円 | 管理費+共益費 | - |
| 敷金/保証金/礼金 | 3ヶ月/ -/ 1ヶ月 | 償却/敷引 | -/ - |
| 管理形態 | - | 管理方式 | - |
| 面積/土地面積 | 103.26㎡/- | 坪数/坪単価 | 31.23坪/0.4323万円/坪 |
| 築年月(築年数)/方位 | 1969年 10月(築56年)/- | 契約期間 | 3年 |
| 用途地域 | - | 接道状況 | - |
| 種別/構造 | 倉庫/木造 | 部屋/所在階/階建 | -/ - / 2階建 |
| 現況 | 空家 | 引渡時期 | 即時 |
| 駐車場/料金 | 有/0円 | 保険加入/料金 | 加入義務有/- |
| 権利金/雑費 | -/- | 取引形態 | 代理 |
| 設備条件 | - | ||
| 賃貸保証等 |
【必須加入】 日本セーフティー株式会社 |
||
| 備考 | ■水洗トイレ、上水道、浄化槽、電動シャッター■駐車場複数台可■浄化槽維持管理費別途必要■鍵交換代実費 | ||
| その他初期費用1 | 自治会協力金(1年):15000円 | ||
ただいまの掲載物件数:

















