戎島町2丁(更地渡し)
価格
1700
万円
所在階
-
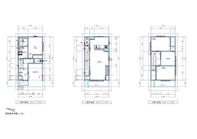
「戎島町2丁」のここがイチオシ。この生活利便性の高い立地で建築条件なしなので、自分で好きな業者を選ぶことができます。また当社建築でのモデルプランもご用意しておりますのでお気軽にご相談ください。
周辺
現況物件の外観です、売主にて解体し更地にての引き渡しです。
地図
土地図