堺市西区 売土地
価格
980
万円
所在階
-
外観パース
広いお庭はドッグランや家庭菜園など活用方法は無限大!(完成予想パース図)
土地図
外観
周辺
土地図
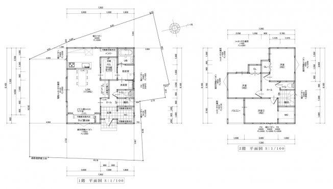
参考プランの建物配置図です。
区画図
木造2階建の参考プランございます!