高松北1丁目店舗
価格
16
万円
面積
50.00㎡
所在階
1階
外観
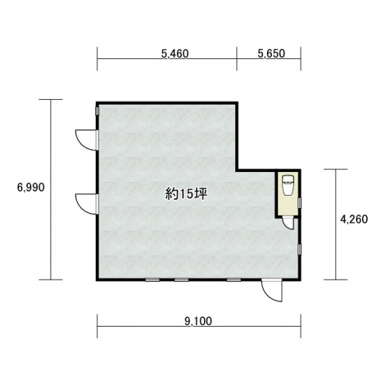
間取り
間取りは現状が優先です
駐車場
その他