大和高田市西坊城4号棟
「大和高田市西坊城4号棟」のここがイチオシ。97.3㎡の建物面積がある物件です。こちらの物件は3090万円です。築2年以内の築浅物件です。お引越しをお考えの方は、当社スタッフまでご連絡ください。お問い合わせいただければ、大和高田市の近鉄南大阪線浮孔付近にある不動産情報をご紹介致します。
- 価格
- 2990万円
- ローンの目安
- 9万円/月
- 所在地/交通
- 奈良県大和高田市南陽町
近鉄南大阪線「浮孔」駅 徒歩13分
- 間取り/建物面積
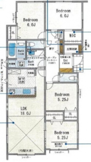
- 4LDK
97.30㎡
消費税法の改正と価格等の表示について
当サイトの課税対象となる物件価格およびその他費用等は、税込み表示となっております。
※消費税法の改正に伴い、物件の引き渡し時期、お支払い時期等により課税率が異なります。
詳しくは、各情報提供元の不動産会社にご確認くださいますようお願いいたします。
ローンシミュレーションこの物件を購入した場合の、月々の支払い価格の一例です。
- 返済期間
-
- 金利
-
- ボーナス時の増額(1回分)
-
- 借入金額:
-
- 頭金:
-

- 毎月の返済額:
(※元利均等方式 金利5.00%まで ※返済年数5~35年まで入力できます)
(※ボーナスは年2回で計算しています。1000万円まで入力できます)
担当者のコメント
ポイント・特徴
-
物件概要 【新築一戸建て】 物件番号:5934260 情報更新日:2026年02月23日 次回更新予定日:2026年03月07日
| 物件名 | 大和高田市西坊城4号棟 | ||
|---|---|---|---|
| 所在地 | 奈良県大和高田市南陽町 | ||
| 交通 |
|
||
| 間取り/詳細 | 4LDK/ - | ||
| 接道状況 | - | ||
| 価格 | 2990万円 | 主要採光面 | - |
| 建物面積/坪数 | 97.30㎡/ 29.43坪 | 土地面積/坪数 | 200.05㎡/ 60.51坪 |
| 種別/構造 | 新築一戸建て/木造 | 築年月(築年数) | 2026年 1月(新築) |
| 階建 | 1階建 | 地目 | - |
| 駐車場/料金 | -/- | 地勢 | - |
| 私道負担面積 | - | セットバック | 無 |
| 都市計画 | - | 建築確認区分 /建築確認番号 |
-/R07SHC110676 |
| 建ぺい率 | - | 容積率 | - |
| 土地権利 | 所有権 | 用途地域 | - |
| 借地料 | - | 現況 | 未完成・建築中 |
| 棟総戸数 | - | 販売戸数 | - |
| 国土法届出要否 | 不要 | その他の法令上の制限 | - |
| 取引態様 | 一般媒介 | 引渡時期 | - |
| 設備条件 |
|
||
| 備考 | こだわりで選びたい方におすすめ。大和高田市エリアで住まいをお探しなら「大和高田市西坊城4号棟」。新築戸建てで新生活を始めてはいかがでしょうか。広々としたゆとりある室内が魅力的な、4LDKの物件です。駅まで徒歩13分でアクセス可能です。大和高田市の近鉄南大阪線浮孔付近で、マイホームを探しましょう。お引っ越しをお考えの方は、当社スタッフまでご連絡下さい。 | ||
ただいまの掲載物件数:





















