堺市西区浜寺諏訪森町東1号棟
池田泉州銀行諏訪森支店が歩いて377mのところにあります。暮らしに役立つ設備の充実した、2025年11月築の物件となります。引っ越しをテンポよく済ませたい方にお勧めなのが即引渡し可の物件です。堺市西区エリアと南海本線諏訪ノ森付近の不動産探しなら、当社がオススメです。当社でなら、きっとお客様のご希望に合った一戸建てが見つかるでしょう。
- 価格
- 4280万円
- ローンの目安
- 12.8万円/月
- 所在地/交通
- 大阪府堺市西区浜寺諏訪森町東3丁
南海本線「諏訪ノ森」駅 徒歩9分
- 間取り/建物面積
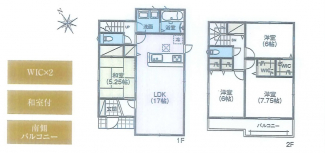
- 4LDK
98.82㎡
消費税法の改正と価格等の表示について
当サイトの課税対象となる物件価格およびその他費用等は、税込み表示となっております。
※消費税法の改正に伴い、物件の引き渡し時期、お支払い時期等により課税率が異なります。
詳しくは、各情報提供元の不動産会社にご確認くださいますようお願いいたします。
ローンシミュレーションこの物件を購入した場合の、月々の支払い価格の一例です。
- 返済期間
-
- 金利
-
- ボーナス時の増額(1回分)
-
- 借入金額:
-
- 頭金:
-

- 毎月の返済額:
(※元利均等方式 金利5.00%まで ※返済年数5~35年まで入力できます)
(※ボーナスは年2回で計算しています。1000万円まで入力できます)
担当者のコメント
ポイント・特徴
-
物件概要 【新築一戸建て】 物件番号:5959699 情報更新日:2026年04月09日 次回更新予定日:2026年04月12日
| 物件名 | 堺市西区浜寺諏訪森町東1号棟 | ||
|---|---|---|---|
| 所在地 | 大阪府堺市西区浜寺諏訪森町東3丁 | ||
| 交通 |
|
||
| 間取り/詳細 | 4LDK/ - | ||
| 接道状況 | - | ||
| 価格 | 4280万円 | 主要採光面 | - |
| 建物面積/坪数 | 98.82㎡/ 29.89坪 | 土地面積/坪数 | 133.68㎡/ 40.43坪 |
| 種別/構造 | 新築一戸建て/木造 | 築年月(築年数) | 2025年 11月(新築) |
| 階建 | 2階建 | 地目 | - |
| 駐車場/料金 | -/- | 地勢 | - |
| 私道負担面積 | - | セットバック | 無 |
| 都市計画 | - | 建築確認区分 /建築確認番号 |
-/- |
| 建ぺい率 | - | 容積率 | - |
| 土地権利 | 所有権 | 用途地域 | - |
| 借地料 | - | 現況 | 空家 |
| 棟総戸数 | - | 販売戸数 | - |
| 国土法届出要否 | 不要 | その他の法令上の制限 | - |
| 取引態様 | 一般媒介 | 引渡時期 | - |
| 設備条件 |
|
||
| 備考 | 通学区域内の小学校は堺市立浜寺小学校で徒歩6分です。すぐに入居できるので、お急ぎの方も安心してお問い合わせください。4LDKの物件は室内も広々としており、開放感があります。家族の憩いの場であるお住まいだからこそ、快適な心地よいものであって欲しいですよね。当社ではご家族が喜ぶ不動産を数多く取り扱っております。ぜひご検討ください。 | ||
ただいまの掲載物件数:





















