コスモビル
- 価格
- 3500万円
- ローンの目安
- 10.5万円/月
- 所在地/交通
-
愛媛県松山市千舟町1丁目
- 伊予鉄道環状線(JR松山駅経由)「勝山町」駅 徒歩8分
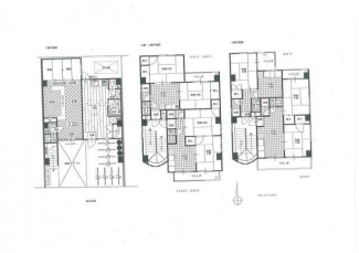
- 間取り/面積
-
-
-
消費税法の改正と価格等の表示について
当サイトの課税対象となる物件価格およびその他費用等は、税込み表示となっております。
※消費税法の改正に伴い、物件の引き渡し時期、お支払い時期等により課税率が異なります。
詳しくは、各情報提供元の不動産会社にご確認くださいますようお願いいたします。
ローンシミュレーションこの物件を購入した場合の、月々の支払い価格の一例です。
- 返済期間
-
- 金利
-
- ボーナス時の増額(1回分)
-
- 借入金額:
-
- 頭金:
-

- 毎月の返済額:
(※元利均等方式 金利5.00%まで ※返済年数5~35年まで入力できます)
(※ボーナスは年2回で計算しています。1000万円まで入力できます)
物件概要【マンション】 物件番号:5983541 情報更新日:2026年04月18日 次回更新予定日:2026年05月02日
| 物件名 | コスモビル | ||
|---|---|---|---|
| 所在地 | 愛媛県松山市千舟町1丁目 | ||
| 交通 |
|
||
| 間取り/詳細 | - - | ||
| 価格 | 3500万円 | 管理費+共益費 | - |
| 建物面積 | - | 土地面積 | 104.13㎡ |
| 地目/地勢 | 宅地/- | 私道負担面積 | - |
| 種別/構造 | マンション/RC | 築年月(築年数)/方位 | 1981年 3月(築45年)/- |
| 所在階/階建 | - / 4階建 | 接道状況 | 一方(南 5.90m ) |
| 都市計画 | 市街化区域 | 用途地域 | 商業 |
| 建ぺい率 | - | 容積率 | - |
| 修繕積立金 | - | 駐車場/料金 | -/- |
| 管理組合有無 | - | 管理形態 | - |
| 管理方式 | - | 管理会社 | - |
| 棟総戸数 | - | 取引態様 | 一般媒介 |
| 現況 | 賃貸中 | 引渡し時期 | 相談 |
| 国土法届出要否 | - | 土地権利 | - |
| 借地料 | - | バルコニー面積 | - |
| 建築確認区分 | - | 建築確認番号 | - |
| その他の法令上の制限 | - | ||
| 設備条件 | - | ||
| 備考 | 1階:(西側)事務所・店舗、(東側)101号ワンルーム2~4階:各2室 | ||
ただいまの掲載物件数:



















