東温市志津川南4丁目の中古一戸建て
人気の志津川南地区(北吉井小/重信中校区)の中古戸建て物件、デザイン性のある建物で室内綺麗です。ファミリー世帯にお勧めな3SLDKの物件です。納戸などの収納スペースがたくさんあるのが魅力です。女性に嬉しい、防犯性の高いダブルロックキー付き玄関です。顔が見える安心のTVインターホン付きです。床暖房付きで寒い日も快適に過ごせます。
- 価格
- 2980万円
- ローンの目安
- 8.9万円/月
- 所在地/交通
- 愛媛県東温市志津川南4丁目
伊予鉄道横河原線「愛大医学部南口」駅 徒歩7分
- 間取り/建物面積
- 3SLDK
123.27㎡
消費税法の改正と価格等の表示について
当サイトの課税対象となる物件価格およびその他費用等は、税込み表示となっております。
※消費税法の改正に伴い、物件の引き渡し時期、お支払い時期等により課税率が異なります。
詳しくは、各情報提供元の不動産会社にご確認くださいますようお願いいたします。
-
-
- 北吉井小学校
約855m/10分
-
- 重信中学校
約925m/11分
-
- 愛媛大学医学部
約597m/7分
-
- フジ 志津川店
約490m/6分
-
- レディ薬局
約506m/6分
-
- 愛媛信用金庫 横河原支店
約971m/12分
-
- LIXIL不動産ショップ佐伯物産
約1075m/13分
-
- バス停愛大医学部前
約615m/7分
-
ローンシミュレーションこの物件を購入した場合の、月々の支払い価格の一例です。
- 返済期間
-
- 金利
-
- ボーナス時の増額(1回分)
-
- 借入金額:
-
- 頭金:
-

- 毎月の返済額:
(※元利均等方式 金利5.00%まで ※返済年数5~35年まで入力できます)
(※ボーナスは年2回で計算しています。1000万円まで入力できます)
担当者のコメント
ポイント・特徴
前道6m以上 フローリング デザイナーズ タンクレストイレ エアコン
物件概要 【中古一戸建て】 物件番号:5929340 情報更新日:2025年11月09日 次回更新予定日:2025年11月15日
| 物件名 | 東温市志津川南4丁目の中古一戸建て | ||
|---|---|---|---|
| 所在地 | 愛媛県東温市志津川南4丁目 | ||
| 交通 |
|
||
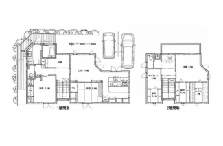
| 間取り/詳細 |
3SLDK/
LDK 18.00畳 1室 洋室 6.50畳 1室 和室 6.40畳 1室 洋室 8.50畳 1室 S 4.00畳 1室 S 3.20畳 2室 S 2.10畳 1室 |
||
| 接道状況 | 角地(北 12.00m )(東 8.00m ) | ||
| 価格 | 2980万円 | 主要採光面 | 東 |
| 建物面積/坪数 | 123.27㎡/ 37.28坪 | 土地面積/坪数 | 168.91㎡/ 51.09坪 |
| 種別/構造 | 中古一戸建て/木造 | 築年月(築年数) | 2014年 5月(築11年) |
| 階建 | 2階建 | 地目 | 宅地 |
| 駐車場/料金 | 有/0円 | 地勢 | 平坦 |
| 私道負担面積 | - | セットバック | 無 |
| 都市計画 | 市街化区域 | 建築確認区分 /建築確認番号 |
-/- |
| 建ぺい率 | 70.00% | 容積率 | 200.00% |
| 土地権利 | 所有権 | 用途地域 | 第二種中高層住居専用 |
| 借地料 | - | 現況 | 空家 |
| 棟総戸数 | 1戸 | 販売戸数 | - |
| 国土法届出要否 | 不要 | その他の法令上の制限 | - |
| 取引態様 | 一般媒介 | 引渡時期 | - |
| 設備条件 |
|
||
| 備考 | お引っ越しの際は玄関ホールが綺麗な場所を選ぶ方が良いです。販売価格が3000万円以内に抑えられています。お掃除がしやすいIHキッチンです。こちらは中古の戸建てです。不動産の購入は大きなお買い物です。そこで失敗しないためにも、不動産のプロである当社スタッフまでお気軽にお問い合わせください。 | ||
ただいまの掲載物件数:





















