愛媛の不動産・賃貸|ハトらぶ>(一戸建て(売買))路線・駅から探す>伊予鉄道高浜線>衣山駅>久万ノ台 もみの木の家

久万ノ台 もみの木の家(愛媛県松山市)の最新物件情報

  • このエントリーをはてなブックマークに追加

久万ノ台 もみの木の家

所在地 交通 建物
愛媛県松山市久万ノ台 伊予鉄道高浜線「衣山」駅 徒歩20分 築6年
2階建 -
木造

販売情報

消費税法の改正と価格等の表示について
当サイトの課税対象となる物件価格およびその他費用等は、税込み表示となっております。
※消費税法の改正に伴い、物件の引き渡し時期、お支払い時期等により課税率が異なります。
詳しくは、各情報提供元の不動産会社にご確認くださいますようお願いいたします。

物件情報 物件情報

周辺地図 周辺地図

  • 久万ノ台 もみの木の家の画像
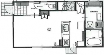
  • 1階戻り
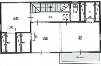
  • 2階間取り
  • 久万ノ台 もみの木の家の画像
  • 久万ノ台 もみの木の家の画像
  • 久万ノ台 もみの木の家の画像
  • 南側
  • 外側
  • 内部
  • 久万ノ台 もみの木の家の画像
  • 久万ノ台 もみの木の家の画像
  • 久万ノ台 もみの木の家の画像
  • 食洗器付き
  • ロビング収納
  • キッチン吊り棚
  • 前へ
  • 次へ

※ご覧になりたい写真をクリックすると
拡大されて表示されます。

物件概要【中古一戸建て】

物件名
久万ノ台 もみの木の家
所在地
愛媛県松山市久万ノ台
交通
  • 伊予鉄道高浜線「衣山」駅 徒歩20分
価格
2830万円
建物面積
-
土地面積
140.20㎡
築年月(築年数)
2019年 10月( 築6年 )
種別/構造
中古一戸建て / 木造
地目
宅地

久万ノ台 もみの木の家へのお問い合わせは (株)アットハウジング まで

089-976-7255

-

定休日:

愛媛県松山市平井町甲2382

販売情報

価格 ローン目安 間取り 建ぺい率/容積率 建物面積 土地面積 詳細 検討リスト
2830万円 8.5万円/月 2LDK -/ - - 140.20㎡ 詳細を見る 追加する

おすすめ物件

LAVIE北斎院2502の画像

LAVIE北斎院2502

愛媛県松山市北斎院町

-

新築

LAVIE土居田2502Bの画像

LAVIE土居田2502B

愛媛県松山市土居田町

伊予鉄道郡中線「土居田」駅 徒歩9分

新築

ONO新築建売の画像

ONO新築建売

愛媛県松山市水泥町

伊予鉄道横河原線「平井」駅 徒歩6分

新築

P/16/3/いの画像

P/16/3/い

愛媛県松山市高砂町3丁目

伊予鉄道環状線(JR松山駅経由)「高砂町」駅 徒歩2分

築33年

P140/7/この画像

P140/7/こ

愛媛県松山市姫原1丁目

-

築42年

会社概要

-
(株)アットハウジング
  • 愛媛県松山市平井町甲2382
  • TEL/089-976-7255
  • FAX/089-976-5787
  • 国土交通大臣免許(3)第8501号

トップへ戻る