安食南御池②号棟
徒歩14分の距離に豊郷町立豊日中学校があるのも魅力!機能的で使いやすいシステムキッチン付きなので、お料理を楽しめます!駅まで徒歩15分でアクセス可能です!新生活のサポートをいたします!不動産情報を求めるのであれば、夢咲 倶楽部のスタッフまでお気軽にお声かけください(#^^#)
- 価格
- 2280万円
- ローンの目安
- 6.8万円/月
- 所在地/交通
- 滋賀県犬上郡豊郷町大字安食南
近江鉄道近江本線「豊郷」駅 徒歩15分
- 間取り/建物面積
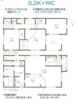
- 3LDK
112.33㎡
消費税法の改正と価格等の表示について
当サイトの課税対象となる物件価格およびその他費用等は、税込み表示となっております。
※消費税法の改正に伴い、物件の引き渡し時期、お支払い時期等により課税率が異なります。
詳しくは、各情報提供元の不動産会社にご確認くださいますようお願いいたします。
ローンシミュレーションこの物件を購入した場合の、月々の支払い価格の一例です。
- 返済期間
-
- 金利
-
- ボーナス時の増額(1回分)
-
- 借入金額:
-
- 頭金:
-

- 毎月の返済額:
(※元利均等方式 金利5.00%まで ※返済年数5~35年まで入力できます)
(※ボーナスは年2回で計算しています。1000万円まで入力できます)
担当者のコメント
ポイント・特徴
南向き エコキュート ウォークインクロゼット シャワー付洗面台 トイレ2ヶ所
物件概要 【新築一戸建て】 物件番号:5925166 情報更新日:2025年10月27日 次回更新予定日:2025年11月02日
| 物件名 | 安食南御池②号棟 | ||
|---|---|---|---|
| 所在地 | 滋賀県犬上郡豊郷町大字安食南 | ||
| 交通 |
|
||
| 間取り/詳細 |
3LDK/
LDK 18.00畳 洋室 7.50畳 洋室 7.00畳 洋室 6.00畳 |
||
| 接道状況 | 一方(南東 5.50m ) | ||
| 価格 | 2280万円 | 主要採光面 | 南 |
| 建物面積/坪数 | 112.33㎡/ 33.97坪 | 土地面積/坪数 | 160.51㎡/ 48.55坪 |
| 種別/構造 | 新築一戸建て/木造 | 築年月(築年数) | 2025年 12月(新築) |
| 階建 | 2階建 | 地目 | 宅地 |
| 駐車場/料金 | 有/- | 地勢 | 平坦 |
| 私道負担面積 | - | セットバック | 無 |
| 都市計画 | 未線引区域 | 建築確認区分 /建築確認番号 |
-/R07SHC11103 |
| 建ぺい率 | 70.00% | 容積率 | 200.00% |
| 土地権利 | 所有権 | 用途地域 | 無指定 |
| 借地料 | - | 現況 | 未完成・建築中 |
| 棟総戸数 | - | 販売戸数 | - |
| 国土法届出要否 | 不要 | その他の法令上の制限 | - |
| 取引態様 | 一般媒介 | 引渡時期 | - |
| 設備条件 |
|
||
| 備考 | 小学校が十分通学できる範囲にあります♪豊郷町立豊郷小学校が徒歩8分です♪浴室が1坪以上あるので、お風呂でゆったりとリラックスしていただけます♪奥行のあるウォークインクロゼットは様々な物が入る優れものです♪夢咲 倶楽部では犬上郡豊郷町にある不動産情報をお探しいただけます♪引っ越しを検討されているのであれば、お気軽にご連絡ください(^o^) | ||
ただいまの掲載物件数:





















