甲賀市土山町南土山の売地
消費税法の改正と価格等の表示について
当サイトの課税対象となる物件価格およびその他費用等は、税込み表示となっております。
※消費税法の改正に伴い、物件の引き渡し時期、お支払い時期等により課税率が異なります。
詳しくは、各情報提供元の不動産会社にご確認くださいますようお願いいたします。
ローンシミュレーションこの物件を購入した場合の、月々の支払い価格の一例です。
- 返済期間
-
- 金利
-
- ボーナス時の増額(1回分)
-
- 借入金額:
-
- 頭金:
-

- 毎月の返済額:
(※元利均等方式 金利5.00%まで ※返済年数5~35年まで入力できます)
(※ボーナスは年2回で計算しています。1000万円まで入力できます)
物件概要 【売地】 物件番号:5981853 情報更新日:2026年04月14日 次回更新予定日:2026年04月28日
| 物件名 | 甲賀市土山町南土山の売地 | ||
|---|---|---|---|
| 所在地 | 滋賀県甲賀市土山町南土山 | ||
| 交通 |
|
||
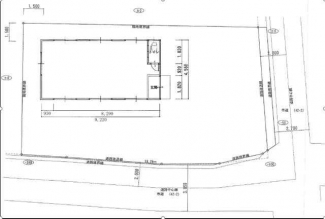
| 接道状況 | 角地(南 3.80m )(東 2.70m ) | ||
| 価格 | 390万円 | 私道負担面積 | - |
| 土地権利 | 所有権 | 土地面積 | 216.68㎡ |
| 坪数 | 65.54坪 | 坪単価 | 5.9506万円/坪 |
| 地目 | 宅地 | 地勢 | - |
| 建築条件 | - | セットバック | 有 |
| 都市計画 | 未線引区域 | 用途地域 | 第一種住居 |
| 建ぺい率/容積率 | 60.00%/160.00% | 借地料 | - |
| 国土法届出要否 | - | その他の法令上の制限 | - |
| 取引態様/現況 | 売主/上物有 | 最適用途 | 住宅用地 |
| 引渡時期 | 相談 | 引渡条件 | 現況渡 |
| 設備条件 | - | ||
| 備考 | 広告転載不可です。 | ||
ただいまの掲載物件数:





















