彦根市西沼波町の事務所
消費税法の改正と価格等の表示について
当サイトの課税対象となる物件価格およびその他費用等は、税込み表示となっております。
※消費税法の改正に伴い、物件の引き渡し時期、お支払い時期等により課税率が異なります。
詳しくは、各情報提供元の不動産会社にご確認くださいますようお願いいたします。
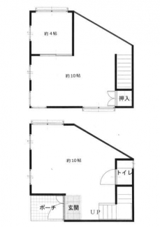
物件概要 【事務所】 物件番号:5940719 情報更新日:2026年03月13日 次回更新予定日:2026年03月27日
| 物件名 | 彦根市西沼波町の事務所 | ||
|---|---|---|---|
| 所在地 | 滋賀県彦根市西沼波町 | ||
| 交通 |
|
||
| 賃料 | 4.8万円 | 管理費+共益費 | - |
| 敷金/保証金/礼金 | 3ヶ月/ -/ 1ヶ月 | 償却/敷引 | -/ - |
| 面積/坪数 | 45.45㎡/ 13.74坪 | 坪単価 | 0.3494万円/坪 |
| 築年月(築年数)/方位 | 1985年 2月(築41年)/- | 契約期間 | 2年 |
| 種別/構造 | 事務所/鉄骨造 | 部屋/所在階/階建 | -/ - / 2階建 |
| 総戸数 | - | 現況/引渡時期 | 空家/即時 |
| 駐車場/料金 | -/- | 保険加入/料金 | 加入義務有/- |
| 権利金/雑費 | -/- | 取引形態/賃貸区分 | 一般媒介/一般 |
| 設備条件 | - | ||
ただいまの掲載物件数:



















