近江八幡市白王町 貸倉庫
さざなみ街道まで約3分!近江八幡市にある貸倉庫です。作業所としてもオススメです!
- 賃料
- 13.5万円
- 坪単価
- 0.4322万円/坪
- 面積
- 103.26㎡
- 所在階
- -
- 管理費+共益費
- 13500円
- 敷金
- 0万円
- 礼金
- 0万円
消費税法の改正と価格等の表示について
当サイトの課税対象となる物件価格およびその他費用等は、税込み表示となっております。
※消費税法の改正に伴い、物件の引き渡し時期、お支払い時期等により課税率が異なります。
詳しくは、各情報提供元の不動産会社にご確認くださいますようお願いいたします。
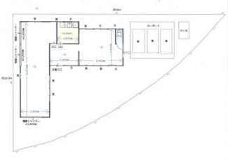
物件概要 【倉庫】 物件番号:5963591 情報更新日:2026年02月26日 次回更新予定日:2026年03月03日
| 物件名 | 近江八幡市白王町 貸倉庫 | ||
|---|---|---|---|
| 所在地 | 滋賀県近江八幡市白王町 | ||
| 交通 |
|
||
| 賃料 | 13.5万円 | 管理費+共益費 | 13500円 |
| 敷金/保証金/礼金 | 0万円/ 3ヶ月/ 0万円 | 償却/敷引 | -/ - |
| 管理形態 | - | 管理方式 | - |
| 面積/土地面積 | 103.26㎡/268.52㎡ | 坪数/坪単価 | 31.23坪/0.4322万円/坪 |
| 築年月(築年数)/方位 | 1969年 10月(築56年)/- | 契約期間 | 3年 |
| 用途地域 | 無指定 | 接道状況 | - |
| 種別/構造 | 倉庫/木造 | 部屋/所在階/階建 | -/ - / 1階建 |
| 現況 | 空家 | 引渡時期 | 相談 |
| 駐車場/料金 | 有/0円 | 保険加入/料金 | 加入義務有/- |
| 権利金/雑費 | -/- | 取引形態 | 一般媒介 |
| 設備条件 |
|
||
| 備考 | 保証会社:加入要 火災保険:加入要 電動シャッターあり(幅2.8m×高さ2.5m) 浄化槽あり(別途、浄化槽管理費が必要です。) 保証金返還率:3年未満50% 5年未満70% 7年未満90% 7年以上100% 町内会費:15,000円(税込)/年 水道料・電気代:実費 ※図面は略図の為現状を優先 | ||
ただいまの掲載物件数:



















