野洲市大畑テナント 1階
- 賃料
- 13.2万円
- 間取り
- 1LDK
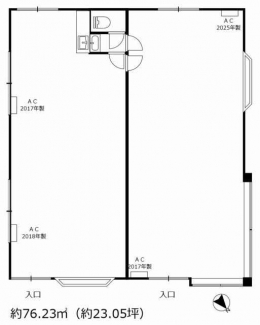
- 面積
- 76.23㎡
- 所在階
- 1階
- 管理費+共益費
- -
- 敷金
- 15万円
- 礼金
- 15万円
消費税法の改正と価格等の表示について
当サイトの課税対象となる物件価格およびその他費用等は、税込み表示となっております。
※消費税法の改正に伴い、物件の引き渡し時期、お支払い時期等により課税率が異なります。
詳しくは、各情報提供元の不動産会社にご確認くださいますようお願いいたします。
物件概要 【店舗一部】 物件番号:5972534 情報更新日:2026年03月21日 次回更新予定日:2026年04月04日
| 物件名 | 野洲市大畑テナント | ||
|---|---|---|---|
| 所在地 | 滋賀県野洲市大畑 | ||
| 交通 |
|
||
| 間取り/詳細 | 1LDK - | ||
| 賃料 | 13.2万円 | 管理費+共益費 | - |
| 敷金/保証金/礼金 | 15万円/ -/ 15万円 | 償却/敷引 | -/ - |
| 坪数 | 23.05坪 | 坪単価 | 0.5727万円/坪 |
| 面積 | 76.23㎡ | 総戸数 | - |
| 築年月(築年数)/方位 | 1989年 11月(築36年)/- | 契約期間 | 2年 |
| 種別/構造 | 店舗一部/鉄骨造 | 部屋/所在階/階建 | -/ 1階/ 1階建 |
| 現況 | 空家 | 引渡時期 | 相談 |
| 駐車場/料金 | 有/0円 | 保険加入/料金 | 加入義務有/- |
| 権利金/雑費 | -/- | 取引形態/賃貸区分 | 一般媒介/一般 |
| 設備条件 |
|
||
| 賃貸保証等 |
【必須加入】 契約時:総賃料80% / 更新:10%(年) |
||
ただいまの掲載物件数:

















