高松北1丁目店舗 1階
事務所、メディカル系、物販などの業種にお勧めです。軽飲食相談、重飲食不可。 現在薬局が入っています、今なら居抜相談可。
- 賃料
- 16万円
- 間取り
- -
- 面積
- 50.00㎡
- 所在階
- 1階
- 管理費+共益費
- -
- 敷金
- 1ヶ月
- 礼金
- 1ヶ月
消費税法の改正と価格等の表示について
当サイトの課税対象となる物件価格およびその他費用等は、税込み表示となっております。
※消費税法の改正に伴い、物件の引き渡し時期、お支払い時期等により課税率が異なります。
詳しくは、各情報提供元の不動産会社にご確認くださいますようお願いいたします。
-
-
- セブンイレブン 泉佐野高松東店
約182m/2分
-
- メディカルモール
約301m/3分
-
- 松源 パレード泉佐野店
約307m/4分
-
- 泉佐野市立第二小学校
約606m/7分
-
- 泉佐野高松郵便局
約294m/3分
-
物件概要 【店舗一部】 物件番号:5936422 情報更新日:2026年01月16日 次回更新予定日:2026年01月19日
| 物件名 | 高松北1丁目店舗 | ||
|---|---|---|---|
| 所在地 | 大阪府泉佐野市高松北1丁目 | ||
| 交通 |
|
||
| 間取り/詳細 | - - | ||
| 賃料 | 16万円 | 管理費+共益費 | - |
| 敷金/保証金/礼金 | 1ヶ月/ -/ 1ヶ月 | 償却/敷引 | -/ - |
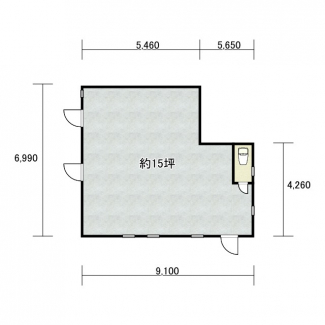
| 坪数 | 15.12坪 | 坪単価 | 1.0582万円/坪 |
| 面積 | 50.00㎡ | 総戸数 | - |
| 築年月(築年数)/方位 | 2003年 12月(築22年)/- | 契約期間 | 2年 |
| 種別/構造 | 店舗一部/鉄骨造 | 部屋/所在階/階建 | -/ 1階/ 3階建 |
| 現況 | 居住中 | 引渡時期 | 2026年1月 |
| 駐車場/料金 | 有/0円 | 保険加入/料金 | 加入義務有/- |
| 権利金/雑費 | -/- | 取引形態/賃貸区分 | 一般媒介/一般 |
| 設備条件 |
|
||
| 備考 | 水道代込みの賃料ですが業種により変動します | ||
ただいまの掲載物件数:



















