三津一丁目古民家店舗
- 価格
- 2150万円
- ローンの目安
- 6.5万円/月
- 所在地/交通
-
愛媛県松山市三津1丁目
- 伊予鉄道高浜線「三津」駅 徒歩11分
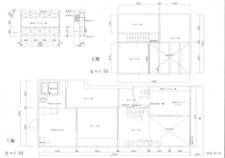
- 間取り/面積
-
-
124.48㎡
消費税法の改正と価格等の表示について
当サイトの課税対象となる物件価格およびその他費用等は、税込み表示となっております。
※消費税法の改正に伴い、物件の引き渡し時期、お支払い時期等により課税率が異なります。
詳しくは、各情報提供元の不動産会社にご確認くださいますようお願いいたします。
ローンシミュレーションこの物件を購入した場合の、月々の支払い価格の一例です。
- 返済期間
-
- 金利
-
- ボーナス時の増額(1回分)
-
- 借入金額:
-
- 頭金:
-

- 毎月の返済額:
(※元利均等方式 金利5.00%まで ※返済年数5~35年まで入力できます)
(※ボーナスは年2回で計算しています。1000万円まで入力できます)
物件概要【店舗】 物件番号:5978414 情報更新日:2026年04月04日 次回更新予定日:2026年04月18日
| 物件名 | 三津一丁目古民家店舗 | ||
|---|---|---|---|
| 所在地 | 愛媛県松山市三津1丁目 | ||
| 交通 |
|
||
| 間取り/詳細 | - - | ||
| 価格 | 2150万円 | 管理費+共益費 | - |
| 建物面積/土地面積 | 124.48㎡/139.53㎡ | バルコニー面積 | - |
| 種別/構造 | 店舗/木造 | 築年月(築年数)/方位 | 1949年 1月(築77年)/- |
| 所在階/階建 | - / 2階建 | 地勢 | 平坦 |
| 修繕積立金 | - | 駐車場/料金 | 有/- |
| 管理組合有無 | - | 管理形態 | - |
| 管理方式 | - | 管理会社 | - |
| 棟総戸数 | - | 接道状況 | 二方(東 7.70m )(西 3.20m ) |
| 都市計画 | 市街化区域 | 用途地域 | 商業 |
| 建ぺい率/容積率 | 80.00%/400.00% | 私道負担面積 | - |
| 土地権利 | 所有権 | 国土法届出要否 | - |
| 取引態様 | 一般媒介 | 現況/引渡し時期 | -/相談 |
| 設備条件 |
|
||
| 備考 | ※1998年増築・変更有り(建物登記簿変更済)※現在営業中 | ||
ただいまの掲載物件数:



















