愛媛の不動産・賃貸|ハトらぶ>(賃貸)路線・駅から探す>伊予鉄道環状線(JR松山駅経由)>大街道駅>プレミスト松山二番町>205

プレミスト松山二番町 205 3LDKの詳細情報

  • このエントリーをはてなブックマークに追加

プレミスト松山二番町 2階

賃料
15万円
間取り
3LDK
専有面積
71.04㎡
所在階
2階
管理費+共益費
-
敷金
2ヶ月
礼金
1ヶ月
  • 検討リストに追加
  • お問い合わせ

消費税法の改正と価格等の表示について
当サイトの課税対象となる物件価格およびその他費用等は、税込み表示となっております。
※消費税法の改正に伴い、物件の引き渡し時期、お支払い時期等により課税率が異なります。
詳しくは、各情報提供元の不動産会社にご確認くださいますようお願いいたします。

  • 部屋情報
  • 周辺地図
  • プレミスト松山二番町の画像

    画像をクリックして拡大表示虫眼鏡

    • プレミスト松山二番町の画像
    • 写真は305号室のものです。
    • 写真は305号室のものです。
    • 写真は305号室のものです。
    • 写真は305号室のものです。
    • 写真は305号室のものです。
    • 写真は305号室のものです。
    • 写真は305号室のものです。
    • 写真は305号室のものです。
    • プレミスト松山二番町の画像
    • 写真は305号室のものです。
    • 写真は305号室のものです。
    • 写真は305号室のものです。
    • 写真は305号室のものです。
    • 写真は305号室のものです。

ポイント・特徴

-

お問い合わせは (株)宅建センターたまい まで

089-941-3504

09:00~19:00

定休日:日曜日、祝日 年末年始・夏季休暇

愛媛県松山市小栗3丁目4-44

  • 検討リストに追加
  • お問い合わせ

物件概要 【マンション】   物件番号:5918066   情報更新日:2025年10月05日  次回更新予定日:2025年10月19日

物件名 プレミスト松山二番町
所在地 愛媛県松山市二番町3丁目
交通
  • 伊予鉄道環状線(JR松山駅経由)「大街道」駅 徒歩5分
  • 伊予鉄道横河原線「松山市」駅 徒歩12分
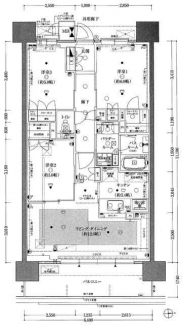
間取り/詳細 3LDK
洋 6・5・5 LDK 16
賃料 15万円 管理費+共益費 -
敷金/保証金/礼金 2ヶ月/ -/ 1ヶ月 償却/敷引 -/ -
面積 71.04㎡ バルコニー面積 -
築年月(築年数)/方位 2023年 8月(築2年)/東 契約期間 2年
種別/構造 マンション/RC 部屋/所在階/階建 205/ 2階/ 15階建
総戸数 93戸 現況/入居可能日 居住中/2025年11月中旬予定
管理形態 - 管理方式 -
駐車場/料金 有/12000円 保険加入/料金 加入義務有/18000円
権利金/雑費 -/- 取引形態/賃貸区分 一般媒介/一般
修繕積立金 -
設備条件
  • エアコン
  • 床暖房
  • 追焚機能浴室
  • バス・トイレ別
  • シャワー
  • 温水洗浄便座
  • ウォークインクローゼット
  • システムキッチン
  • カウンターキッチン
  • 浄水器
  • 食器乾燥機
  • 食器洗乾燥機
  • 洗面所
  • 洗髪洗面化粧台
  • 浴室乾燥機
  • 複層ガラス
  • バルコニー
  • エレベーター
  • オートロック
  • TVモニタ付インターホン
  • TVモニタ付オートロック
  • 宅配ボックス
  • 駐輪場
  • 分譲賃貸
  • 24時間換気システム
  • 24時間セキュリティ
  • 防犯カメラ
  • オートバス
  • バイク置場
賃貸保証等 【必須加入】
保証委託料:(初回)月費用の50%相当額、(毎年)13,000円
備考 口座振替手数料:月額330円(税込)敷地内駐車場の空き状況は都度要確認です。

物件お問い合わせ

必要項目の入力

お名前 必
性別
年齢
メールアドレス 必
電話番号
連絡時間
要望 必
内容

確認画面へ

この物件を見た方お勧め物件

松山市古川西3丁目のマンションの画像

松山市南久米町のマンションの画像

松山市上市1丁目のタウンの画像

松山市若草町のマンションの画像

松山市桑原1丁目の一戸建ての画像

会社概要

-
(株)宅建センターたまい
  • 愛媛県松山市小栗3丁目4-44
  • TEL/089-941-3504
  • FAX/089-933-8768
  • 愛媛県知事免許(7)第4233号
  • (公社)愛媛県宅地建物取引業協会

携帯電話画面

QRコード

このQRコードを読み取ることで、ケータイでも物件情報を確認できます。

トップへ戻る