愛媛の不動産・賃貸|ハトらぶ>(一戸建て(売買))路線・駅から探す>>>愛媛県松山市志津川町の物件

松山市志津川町の売買物件 4LDKの詳細情報

  • このエントリーをはてなブックマークに追加

松山市志津川町の中古一戸建て

価格
2063万円
ローンの目安
6.2万円/月
所在地/交通
愛媛県松山市志津川町
-
間取り/建物面積
4LDK
123.10㎡
  • 検討リストに追加
  • お問い合わせ

消費税法の改正と価格等の表示について
当サイトの課税対象となる物件価格およびその他費用等は、税込み表示となっております。
※消費税法の改正に伴い、物件の引き渡し時期、お支払い時期等により課税率が異なります。
詳しくは、各情報提供元の不動産会社にご確認くださいますようお願いいたします。

  • 部屋情報
  • 周辺地図
  • 松山市志津川町の中古一戸建ての画像

    画像をクリックして拡大表示虫眼鏡

    • 松山市志津川町の中古一戸建ての画像
    • 松山市志津川町の中古一戸建ての画像
    • 松山市志津川町の中古一戸建ての画像
    • 松山市志津川町の中古一戸建ての画像
    • 松山市志津川町の中古一戸建ての画像
    • 松山市志津川町の中古一戸建ての画像
    • 松山市志津川町の中古一戸建ての画像
    • 松山市志津川町の中古一戸建ての画像
    • 松山市志津川町の中古一戸建ての画像
    • 松山市志津川町の中古一戸建ての画像
    • 松山市志津川町の中古一戸建ての画像
    • 松山市志津川町の中古一戸建ての画像

ローンシミュレーションこの物件を購入した場合の、月々の支払い価格の一例です。

返済期間
  • +
  • -
金利
  • +
  • -
ボーナス時の増額(1回分)
  • +
  • -
借入金額:
  • +
  • -
頭金:
  • +
  • -

毎月の返済額:

(※元利均等方式 金利5.00%まで ※返済年数5~35年まで入力できます)

(※ボーナスは年2回で計算しています。1000万円まで入力できます)

ポイント・特徴

-

お問い合わせは (株)宅建センターたまい まで

089-941-3504

09:00~19:00

定休日:日曜日、祝日 年末年始・夏季休暇

愛媛県松山市小栗3丁目4-44

  • 検討リストに追加
  • お問い合わせ

物件概要 【中古一戸建て】   物件番号:5889973   情報更新日:2025年10月16日  次回更新予定日:2025年10月30日

物件名 松山市志津川町の中古一戸建て
所在地 愛媛県松山市志津川町
交通
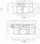
間取り/詳細 4LDK/
和 6 洋 6・5.7・16.3 LDK 13.9
接道状況 一方(南 4.00m )
価格 2063万円 主要採光面 -
建物面積/坪数 123.10㎡/ 37.23坪 土地面積/坪数 272.75㎡/ 82.5坪
種別/構造 中古一戸建て/軽量鉄骨 築年月(築年数) 1987年 4月(築38年)
階建 2階建 地目 宅地
駐車場/料金 有/0円 地勢 -
私道負担面積 - セットバック -
都市計画 市街化区域 建築確認区分
/建築確認番号
-/-
建ぺい率 50.00% 容積率 80.00%
土地権利 所有権 用途地域 第一種低層住居専用
借地料 - 現況 空家
棟総戸数 - 販売戸数 -
国土法届出要否 - その他の法令上の制限 -
取引態様 専任媒介 引渡時期 -
設備条件 -
備考 現状渡し、敷地内に倉庫(30㎡)あり、建物はダイワハウス

物件お問い合わせ

必要項目の入力

お名前 必
性別
年齢
メールアドレス 必
電話番号
連絡時間
要望 必
内容

確認画面へ

同じエリアの中古一戸建て

価格と住所の近い物件

松山市北条辻の中古一戸建ての画像

松山市保免西1丁目の中古一戸建ての画像

松山市北井門2丁目の中古一戸建ての画像

松山市富久町の中古一戸建ての画像

松山市余戸東5丁目の中古一戸建ての画像

会社概要

-
(株)宅建センターたまい
  • 愛媛県松山市小栗3丁目4-44
  • TEL/089-941-3504
  • FAX/089-933-8768
  • 愛媛県知事免許(7)第4233号
  • (公社)愛媛県宅地建物取引業協会

携帯電話画面

QRコード

このQRコードを読み取ることで、ケータイでも物件情報を確認できます。

トップへ戻る