愛媛の不動産・賃貸|ハトらぶ>(一戸建て(売買))路線・駅から探す>伊予鉄道横河原線>石手川公園駅>小栗中古住宅>物件詳細

小栗中古住宅 3SLDKの詳細情報

  • このエントリーをはてなブックマークに追加

小栗中古住宅

価格
1980万円
ローンの目安
5.9万円/月
所在地/交通
愛媛県松山市小栗1丁目
伊予鉄道横河原線「石手川公園」駅 徒歩11分
間取り/建物面積
3SLDK
96.80㎡
  • 検討リストに追加

消費税法の改正と価格等の表示について
当サイトの課税対象となる物件価格およびその他費用等は、税込み表示となっております。
※消費税法の改正に伴い、物件の引き渡し時期、お支払い時期等により課税率が異なります。
詳しくは、各情報提供元の不動産会社にご確認くださいますようお願いいたします。

  • 部屋情報
  • 周辺地図
  • 東側から

    画像をクリックして拡大表示虫眼鏡

    • 東側から
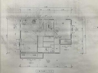
    • 1F平面図
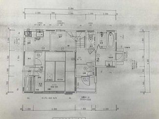
    • 2F平面図
    • 南側から
    • 1F和室
    • 1Fキッチン
    • 1F
    • 1F
    • 階段下収納
    • 小栗中古住宅の画像
    • 2F
    • 2F
    • 2F和室
    • 2F洋室
    • 2F

ローンシミュレーションこの物件を購入した場合の、月々の支払い価格の一例です。

返済期間
  • +
  • -
金利
  • +
  • -
ボーナス時の増額(1回分)
  • +
  • -
借入金額:
  • +
  • -
頭金:
  • +
  • -

毎月の返済額:

(※元利均等方式 金利5.00%まで ※返済年数5~35年まで入力できます)

(※ボーナスは年2回で計算しています。1000万円まで入力できます)

ポイント・特徴

-

お問い合わせは (株)アットハウジング まで

089-976-7255

-

定休日:

愛媛県松山市平井町甲2382

  • 検討リストに追加

物件概要 【中古一戸建て】   物件番号:5934685   情報更新日:2026年01月07日  次回更新予定日:2026年01月21日

物件名 小栗中古住宅
所在地 愛媛県松山市小栗1丁目
交通
  • 伊予鉄道横河原線「石手川公園」駅 徒歩11分
  • 伊予鉄道郡中線「土橋」駅 徒歩15分
間取り/詳細 3SLDK/
和 4.5・8 洋 6 S 2
接道状況 一方(南 3.90m )
価格 1980万円 主要採光面
建物面積/坪数 96.80㎡/ 29.28坪 土地面積/坪数 87.30㎡/ 26.4坪
種別/構造 中古一戸建て/軽量鉄骨 築年月(築年数) 1998年 11月(築27年)
階建 2階建 地目 宅地
駐車場/料金 有/- 地勢 平坦
私道負担面積 - セットバック
都市計画 市街化区域 建築確認区分
/建築確認番号
-/-
建ぺい率 60.00% 容積率 200.00%
土地権利 所有権 用途地域 第一種住居
借地料 - 現況 空家
棟総戸数 - 販売戸数 -
国土法届出要否 - その他の法令上の制限 -
取引態様 一般媒介 引渡時期 -
設備条件
  • エアコン
  • 追焚機能浴室
  • トイレ2ヶ所
  • 床下収納
  • システムキッチン
  • 照明器具付き
  • 閑静な住宅地
  • バリアフリー
  • 出窓
  • 駐車場2台可
  • 二世帯住宅
備考 二世帯住宅。環境は、市内中心部からアクセス良好、病院・小学校・中学校・高校には徒歩圏内、スーパーも徒歩約9分。物件は、軽量鉄骨の建物で地震にも倒壊しにくい、飲用水は井戸水、LPガス。

価格と住所の近い物件

松山市清住2丁目の中古一戸建ての画像

松山市古三津1丁目の中古テラスハウスの画像

松山市生石町の中古一戸建ての画像

松山市余戸西2丁目の中古一戸建ての画像

松山市中須賀3丁目の中古一戸建ての画像

会社概要

-
(株)アットハウジング
  • 愛媛県松山市平井町甲2382
  • TEL/089-976-7255
  • FAX/089-976-5787
  • 国土交通大臣免許(3)第8501号
  • (公社)愛媛県宅地建物取引業協会

携帯電話画面

QRコード

このQRコードを読み取ることで、ケータイでも物件情報を確認できます。

トップへ戻る