東温市樋口の中古一戸建て
南向きひな壇で日当たり良好な築3年の平屋住宅。高低差を活かし外からの視線を抑えた開放的な住環境が魅力。3LDK+WIC、LDK18.8帖の対面キッチン。エコワン・追焚・エアコン3台付。駐車3台可、備品・家具相談可。北吉井小・重信中校区の人気エリア。
- 価格
- 2650万円
- ローンの目安
- 8万円/月
- 所在地/交通
- 愛媛県東温市樋口
伊予鉄道横河原線「横河原」駅 徒歩20分
- 間取り/建物面積
- 3SLDK
77.84㎡
消費税法の改正と価格等の表示について
当サイトの課税対象となる物件価格およびその他費用等は、税込み表示となっております。
※消費税法の改正に伴い、物件の引き渡し時期、お支払い時期等により課税率が異なります。
詳しくは、各情報提供元の不動産会社にご確認くださいますようお願いいたします。
-
-
- ほっともっと東温志津川店
約1924m/24分
-
- 愛媛大学医学部
約1961m/24分
-
- 東温市役所 いわがらこども館
約1652m/20分
-
- セブンスター重信店
約1946m/24分
-
- 愛媛医療センター
約2088m/26分
-
- 横河原郵便局
約1400m/17分
-
- 東温市消防本部
約1826m/23分
-
- 横河原駅
約1600m/20分
-
- バス停茶道
約1890m/23分
-
ローンシミュレーションこの物件を購入した場合の、月々の支払い価格の一例です。
- 返済期間
-
- 金利
-
- ボーナス時の増額(1回分)
-
- 借入金額:
-
- 頭金:
-

- 毎月の返済額:
(※元利均等方式 金利5.00%まで ※返済年数5~35年まで入力できます)
(※ボーナスは年2回で計算しています。1000万円まで入力できます)
担当者のコメント
ポイント・特徴
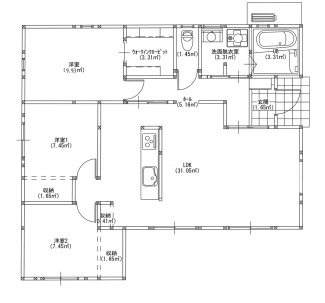
築3年の美邸、人気の平屋3LDK+WIC。南向きひな壇で陽当たり良好、高低差により視線を気にせず開放的に暮らせます。LDK18.8帖の対面キッチン、エコワン・追焚・エアコン3台付きで設備充実。駐車3台可、家具家電の引継ぎも相談可能。子育て世帯にも嬉しい住環境です。
物件概要 【中古一戸建て】 物件番号:5977891 情報更新日:2026年04月05日 次回更新予定日:2026年04月10日
| 物件名 | 東温市樋口の中古一戸建て | ||
|---|---|---|---|
| 所在地 | 愛媛県東温市樋口 | ||
| 交通 |
|
||
| 間取り/詳細 |
3SLDK/
LDK 18.80畳 1室 洋室 6.00畳 1室 洋室 4.50畳 2室 S 2.00畳 1室 |
||
| 接道状況 | 一方(東 4.30m ) | ||
| 価格 | 2650万円 | 主要採光面 | 南 |
| 建物面積/坪数 | 77.84㎡/ 23.54坪 | 土地面積/坪数 | 248.67㎡/ 75.22坪 |
| 種別/構造 | 中古一戸建て/木造 | 築年月(築年数) | 2023年 6月(築2年) |
| 階建 | 1階建 | 地目 | 宅地 |
| 駐車場/料金 | 有/0円 | 地勢 | ひな段 |
| 私道負担面積 | - | セットバック | 無 |
| 都市計画 | 都市計画区域外 | 建築確認区分 /建築確認番号 |
-/- |
| 建ぺい率 | - | 容積率 | - |
| 土地権利 | 所有権 | 用途地域 | 無指定 |
| 借地料 | - | 現況 | 居住中 |
| 棟総戸数 | - | 販売戸数 | - |
| 国土法届出要否 | 不要 | その他の法令上の制限 | - |
| 取引態様 | 専任媒介 | 引渡時期 | - |
| 設備条件 |
|
||
| 備考 | 南向きひな壇に位置する築3年の平屋住宅。前面道路との高低差を活かし、外からの視線を気にせず開放的でプライバシー性の高い暮らしを実現します。人気の平屋は階段のない快適な生活動線も魅力。間取りは3LDK+WIC、LDKは広々18.8帖の対面キッチンで家族の会話も弾みます。設備も充実しており、エコワンや追焚機能付き浴室、エアコン3台、タッチキー玄関を完備。さらに制振装置K-ダンパーや複層ガラス、ベタ基礎の長期優良住宅で安心です。駐車場は3台分確保。カーテン・照明・家具の引継ぎや70型テレビなどの備品も相談可能で、すぐに新生活を始めたい方にもおすすめの一邸です。 | ||
ただいまの掲載物件数:





















