松山市木屋町4丁目の中古一戸建て
- 価格
- 2200万円
- ローンの目安
- 6.6万円/月
- 所在地/交通
- 愛媛県松山市木屋町4丁目
伊予鉄道環状線(JR松山駅経由)「木屋町」駅 徒歩1分
- 間取り/建物面積
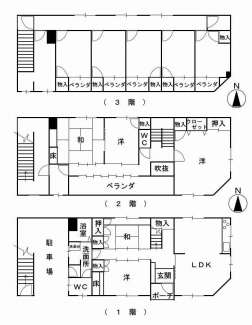
- 5LDK
266.70㎡
消費税法の改正と価格等の表示について
当サイトの課税対象となる物件価格およびその他費用等は、税込み表示となっております。
※消費税法の改正に伴い、物件の引き渡し時期、お支払い時期等により課税率が異なります。
詳しくは、各情報提供元の不動産会社にご確認くださいますようお願いいたします。
ローンシミュレーションこの物件を購入した場合の、月々の支払い価格の一例です。
- 返済期間
-
- 金利
-
- ボーナス時の増額(1回分)
-
- 借入金額:
-
- 頭金:
-

- 毎月の返済額:
(※元利均等方式 金利5.00%まで ※返済年数5~35年まで入力できます)
(※ボーナスは年2回で計算しています。1000万円まで入力できます)
物件概要 【中古一戸建て】 物件番号:5935682 情報更新日:2026年01月20日 次回更新予定日:2026年02月02日
| 物件名 | 松山市木屋町4丁目の中古一戸建て | ||
|---|---|---|---|
| 所在地 | 愛媛県松山市木屋町4丁目 | ||
| 交通 |
|
||
| 間取り/詳細 |
5LDK/
+倉庫(3階) |
||
| 接道状況 | 角地(東 7.90m )(南 5.00m ) | ||
| 価格 | 2200万円 | 主要採光面 | - |
| 建物面積/坪数 | 266.70㎡/ 80.67坪 | 土地面積/坪数 | 107.66㎡/ 32.56坪 |
| 種別/構造 | 中古一戸建て/鉄骨造 | 築年月(築年数) | 1978年 1月(築48年) |
| 階建 | 3階建 | 地目 | 宅地 |
| 駐車場/料金 | 有/0円 | 地勢 | - |
| 私道負担面積 | - | セットバック | - |
| 都市計画 | 市街化区域 | 建築確認区分 /建築確認番号 |
-/- |
| 建ぺい率 | 80.00% | 容積率 | 300.00% |
| 土地権利 | 所有権 | 用途地域 | 近隣商業 |
| 借地料 | - | 現況 | 空家 |
| 棟総戸数 | - | 販売戸数 | - |
| 国土法届出要否 | - | その他の法令上の制限 | 準防火地域 |
| 取引態様 | 一般媒介 | 引渡時期 | - |
| 設備条件 |
|
||
| 備考 | 東南角地、R7年12月全面改築改装済、耐震工事施工済、ご希望があれば和室を洋室に無料で変更します、フジ本町店 北220m | ||
ただいまの掲載物件数:



















