愛媛の不動産・賃貸|ハトらぶ>(土地(賃貸))路線・駅から探す>伊予鉄道横河原線>鷹ノ子駅>愛媛県松山市南高井町の物件

松山市南高井町の賃貸物件 の詳細情報

  • このエントリーをはてなブックマークに追加

松山市南高井町の事業用地

賃料
15万円
坪単価
0.0528万円/坪
面積
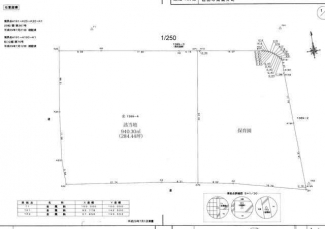
940.30㎡
管理費+共益費
-
敷金
3ヶ月
礼金
1ヶ月
  • 検討リストに追加
  • お問い合わせ

消費税法の改正と価格等の表示について
当サイトの課税対象となる物件価格およびその他費用等は、税込み表示となっております。
※消費税法の改正に伴い、物件の引き渡し時期、お支払い時期等により課税率が異なります。
詳しくは、各情報提供元の不動産会社にご確認くださいますようお願いいたします。

  • 部屋情報
  • 周辺地図
  • 松山市南高井町の事業用地の画像

    画像をクリックして拡大表示虫眼鏡

    • 松山市南高井町の事業用地の画像
    • 松山市南高井町の事業用地の画像

ポイント・特徴

-

お問い合わせは いよ綜合商事 まで

089-954-3777

09:00~18:00

定休日:日曜、祝日

愛媛県松山市鷹子町585

  • 検討リストに追加
  • お問い合わせ

物件概要 【事業用地】   物件番号:5839090   情報更新日:2025年10月07日  次回更新予定日:2025年10月21日

所在地 愛媛県松山市南高井町
交通
  • 伊予鉄道横河原線「鷹ノ子」駅 徒歩34分
賃料 15万円 管理費+共益費 -
敷金/保証金/礼金 3ヶ月/ -/ 1ヶ月 償却/敷引 -/ -
面積/私道負担面積 940.30㎡/- 坪単価 0.0528万円/坪
建ぺい率/容積率 70.00%/200.00% 借地料/借地期間 -/-
地目/地勢 田/- 最適用途/用途地域 病院診療所/-
方位 - 契約期間 10年
種別 事業用地 現状/引渡時期 その他 / 相談
駐車場/料金 -/- 保険加入/料金 -/-
権利金/雑費 -/- 取引形態 専任媒介
設備条件 -
備考 市街化調整区域内の現状農地に付き農地転用許可が必要です。建物の建設は用途、規模等の制限が有り、開発許可申請が必要となります。保証会社との保証委託契約が必要です。
その他初期費用1 保証会社保証委託料:150000円

物件お問い合わせ

必要項目の入力

お名前 必
性別
年齢
メールアドレス 必
電話番号
連絡時間
要望 必
内容

確認画面へ

この物件を見た方お勧め物件

松山市朝生田町2丁目の事業用地の画像

会社概要

-
いよ綜合商事
  • 愛媛県松山市鷹子町585
  • TEL/089-954-3777
  • FAX/089-954-3778
  • 愛媛県知事免許(3)第5174号
  • (公社)愛媛県宅地建物取引業協会

携帯電話画面

QRコード

このQRコードを読み取ることで、ケータイでも物件情報を確認できます。

トップへ戻る