南高井テナント 1階
屋外看板スペースがあり、車の駐車は3台程度可能です。賃料10万円以下をご希望のお客様、ぜひお問い合わせください。初期費用のカード決済ができます。市街化調整区域内の物件ですが、既存宅地なので第二種中高層住居専用地域内で可能な用途の店舗・事務所はご利用可能です。【鍵交換費用33,000円(税込):入口・勝手口・倉庫の3箇所】
- 賃料
- 7.7万円
- 間取り
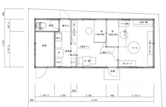
- 2K
- 面積
- 33.35㎡
- 所在階
- 1階
- 管理費+共益費
- -
- 敷金
- 3ヶ月
- 礼金
- 0ヶ月
消費税法の改正と価格等の表示について
当サイトの課税対象となる物件価格およびその他費用等は、税込み表示となっております。
※消費税法の改正に伴い、物件の引き渡し時期、お支払い時期等により課税率が異なります。
詳しくは、各情報提供元の不動産会社にご確認くださいますようお願いいたします。
担当者のコメント
ポイント・特徴
当社管理物件 年内入居可 最上階 上階無し 駐車場2台無料
物件概要 【店舗一戸建て】 物件番号:5951702 情報更新日:2026年01月22日 次回更新予定日:2026年01月31日
| 物件名 | 南高井テナント | ||
|---|---|---|---|
| 所在地 | 愛媛県松山市南高井町 | ||
| 交通 |
|
||
| 間取り/詳細 | 2K - | ||
| 賃料 | 7.7万円 | 管理費+共益費 | - |
| 敷金/保証金/礼金 | 3ヶ月/ -/ 0ヶ月 | 償却/敷引 | -/ - |
| 坪数 | 10.08坪 | 坪単価 | 0.7638万円/坪 |
| 面積 | 33.35㎡ | 総戸数 | 1戸 |
| 築年月(築年数)/方位 | 2007年 3月(築18年)/南 | 契約期間 | 2年 |
| 種別/構造 | 店舗一戸建て/軽量鉄骨 | 部屋/所在階/階建 | -/ 1階/ 1階建 |
| 現況 | 賃貸中 | 引渡時期 | 2026年5月中旬予定 |
| 駐車場/料金 | 有/0円 | 保険加入/料金 | 加入義務有/- |
| 権利金/雑費 | -/- | 取引形態/賃貸区分 | 専任媒介/一般 |
| 設備条件 |
|
||
| 賃貸保証等 |
【必須加入】 【最低初回保証料40,000円】 |
||
| 備考 | 南高井テナントの詳しい情報。駐車場があり、敷地内に車を置いておくことができます。初期費用はカードで決済いただけます。 【※敷引:1年未満の退去の場合は敷金より50%を差し引き、それ以外は敷金より20%を差し引きとなります】 | ||
| その他初期費用1 | 鍵交換費:33000円 | ||
ただいまの掲載物件数:



















