久保ビル 1階
消費税法の改正と価格等の表示について
当サイトの課税対象となる物件価格およびその他費用等は、税込み表示となっております。
※消費税法の改正に伴い、物件の引き渡し時期、お支払い時期等により課税率が異なります。
詳しくは、各情報提供元の不動産会社にご確認くださいますようお願いいたします。
物件概要 【店舗事務所】 物件番号:5931004 情報更新日:2026年02月07日 次回更新予定日:2026年02月21日
| 物件名 | 久保ビル | ||
|---|---|---|---|
| 所在地 | 愛媛県松山市花園町 | ||
| 交通 |
|
||
| 間取り/詳細 | - - | ||
| 賃料 | 55万円 | 管理費+共益費 | - |
| 敷金/保証金/礼金 | 6ヶ月/ -/ - | 償却/敷引 | -/ - |
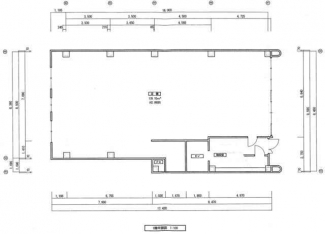
| 坪数 | 42.07坪 | 坪単価 | 1.3074万円/坪 |
| 面積 | 139.10㎡ | 総戸数 | - |
| 築年月(築年数)/方位 | 1992年 3月(築33年)/- | 契約期間 | 3年 |
| 種別/構造 | 店舗事務所/鉄骨造 | 部屋/所在階/階建 | 1F/ 1階/ 5階建 |
| 現況 | 空家 | 引渡時期 | 相談 |
| 駐車場/料金 | -/- | 保険加入/料金 | 加入義務有/- |
| 権利金/雑費 | -/- | 取引形態/賃貸区分 | 一般媒介/一般 |
| 設備条件 |
|
||
| 備考 | 【引渡状態】基本的にはスケルトン<天井>照明・エアコン・天井ボードは撤去、軽天残し<床>既存のPタイル残し<壁>クロス撤去、ボード残し(下地補修無)<水回り>給排水立ち上がりまで<電気>原則分電盤まで、照明等の配線撤去、壁コンセントは残し【水道代】実費、【ごみ処理】家主指定業者と個別に契約頂きます。ビル内禁煙。町費の負担が別途あります。 | ||
ただいまの掲載物件数:



















