愛媛の不動産・賃貸|ハトらぶ>(駐車場)路線・駅から探す>伊予鉄道郡中線>松山市駅>末広第2モータープール>物件詳細

末広第2モータープール の詳細情報

  • このエントリーをはてなブックマークに追加

末広第2モータープール

賃料
12000
管理費+共益費
-
敷金
-
礼金
-
  • 検討リストに追加

消費税法の改正と価格等の表示について
当サイトの課税対象となる物件価格およびその他費用等は、税込み表示となっております。
※消費税法の改正に伴い、物件の引き渡し時期、お支払い時期等により課税率が異なります。
詳しくは、各情報提供元の不動産会社にご確認くださいますようお願いいたします。

  • 部屋情報
  • 周辺地図
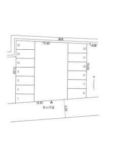
  • 末広第2モータープールの画像

    画像をクリックして拡大表示虫眼鏡

    • 末広第2モータープールの画像

ポイント・特徴

-

お問い合わせは (株)協立土地建物商事 まで

089-945-5100

-

定休日:

愛媛県松山市柳井町3丁目8-13

  • 検討リストに追加

物件概要 【駐車場】   物件番号:-   情報更新日:2026年01月28日  次回更新予定日:2026年02月11日

物件名 末広第2モータープール
所在地 愛媛県松山市末広町
交通
  • 伊予鉄道郡中線「松山市」駅 徒歩7分
賃料 12000円 管理費+共益費 -
敷金/保証金/礼金 -/ -/ - 償却/敷引 -/ -
契約期間 1年 種別 駐車場
現況/引渡時期 使用中/2026年3月1日 保険加入/料金 -/-
権利金/雑費 -/- 取引形態 専任媒介
設備条件 -
備考 南側道路は通学路の為、平日午前7時~8時30分まで通行禁止。(土・日・祝祭日は除く)禁止時間に通行する場合は通行許可証の申請が必要。

この物件を見た方お勧め物件

松山市柳井町2丁目の駐車場の画像

松山市末広町の駐車場の画像

松山市柳井町2丁目の駐車場の画像

松山市柳井町2丁目の駐車場の画像

松山市春日町の駐車場の画像

会社概要

-
(株)協立土地建物商事
  • 愛媛県松山市柳井町3丁目8-13
  • TEL/089-945-5100
  • FAX/089-945-5127
  • 愛媛県知事免許(8)第3751号
  • (公社)愛媛県宅地建物取引業協会

携帯電話画面

QRコード

このQRコードを読み取ることで、ケータイでも物件情報を確認できます。

トップへ戻る