松山市宮西1丁目の中古マンション 7階
- 価格
- 2250万円
- ローンの目安
- 6.8万円/月
- 所在地/交通
-
愛媛県松山市宮西1丁目
- 伊予鉄道環状線(JR松山駅経由)「宮田町」駅 徒歩4分
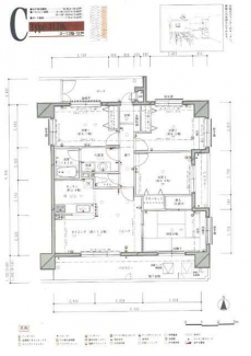
- 間取り/専有面積
-
7階
4LDK
82.83㎡
消費税法の改正と価格等の表示について
当サイトの課税対象となる物件価格およびその他費用等は、税込み表示となっております。
※消費税法の改正に伴い、物件の引き渡し時期、お支払い時期等により課税率が異なります。
詳しくは、各情報提供元の不動産会社にご確認くださいますようお願いいたします。
ローンシミュレーションこの物件を購入した場合の、月々の支払い価格の一例です。
- 返済期間
-
- 金利
-
- ボーナス時の増額(1回分)
-
- 借入金額:
-
- 頭金:
-

- 毎月の返済額:
(※元利均等方式 金利5.00%まで ※返済年数5~35年まで入力できます)
(※ボーナスは年2回で計算しています。1000万円まで入力できます)
物件概要【中古マンション】 物件番号:5946591 情報更新日:2026年04月05日 次回更新予定日:2026年04月19日
| 物件名 | 松山市宮西1丁目の中古マンション | ||
|---|---|---|---|
| 所在地 | 愛媛県松山市宮西1丁目 | ||
| 交通 |
|
||
| 間取り/詳細 | 4LDK - | ||
| 価格 | 2250万円 | 管理費+共益費 | 12760円 |
| 専有面積/土地面積 | 82.83㎡/1055.12㎡ | バルコニー面積 | 19.77㎡ |
| 種別/構造 | 中古マンション/SRC | 築年月(築年数)/方位 | 1998年 7月(築27年)/南東 |
| 所在階/階建 | 7階/ 13階建 | 地勢/地目 | -/ - |
| 修繕積立金/借地料 | 13560円/- | 駐車場/料金 | 有/6000円 |
| 管理組合有無 | 有 | 管理形態 | 管理会社に全部委託 |
| 管理方式 | 日勤 | 管理会社 | (株)東急コミュニティー |
| 棟総戸数/販売戸数 | 36戸/- | 建築確認区分 /建築確認番号 |
-/- |
| 土地権利 | 所有権 | 国土法届出要否 | - |
| 取引態様/用途地域 | 一般媒介/- | 現況/引渡し時期 | 空家/相談 |
| 設備条件 |
|
||
ただいまの掲載物件数:



















